Ogłoszenia i obwieszczenia


WYŁOŻENIE DO PUBLICZNEGO WGLĄDU PROJEKTU ZMIANY MIEJCOWEGO PLANU ZAGOSPODAROWANIA PRZESTRZENNEGO W OBRĘBIE MIEJSCOWOŚCI PRZERZECZYN ZDRÓJ ORAZ PROGNOZY JEJ ODZIAŁYWANIA NA ŚRODOWISKO

30‑07‑2021 07:48:11
Dokumenty:
Plik docx PROJEKT UCHWAŁY W SPRAWIE ZMIANY MPZP DLA PRZERZECZYNA ZDRÓJ.docx
30‑07‑2021 07:58:46
Trwa wczytywanie metryki. Proszę czekać.
Typ dokumentu:
application/vnd.openxmlformats-officedocument.wordprocessingml.document
Rozmiar:
19KB
Liczba pobrań:
Trwa wczytywanie
Plik docx UZASADNIENIE DO PROJKETU ZMIANY MPZP W OBRĘBIE MIEJSCOWOŚCI PRZERZECZYN ZDRÓJ.docx
30‑07‑2021 07:58:46
Trwa wczytywanie metryki. Proszę czekać.
Typ dokumentu:
application/vnd.openxmlformats-officedocument.wordprocessingml.document
Rozmiar:
20KB
Liczba pobrań:
Trwa wczytywanie
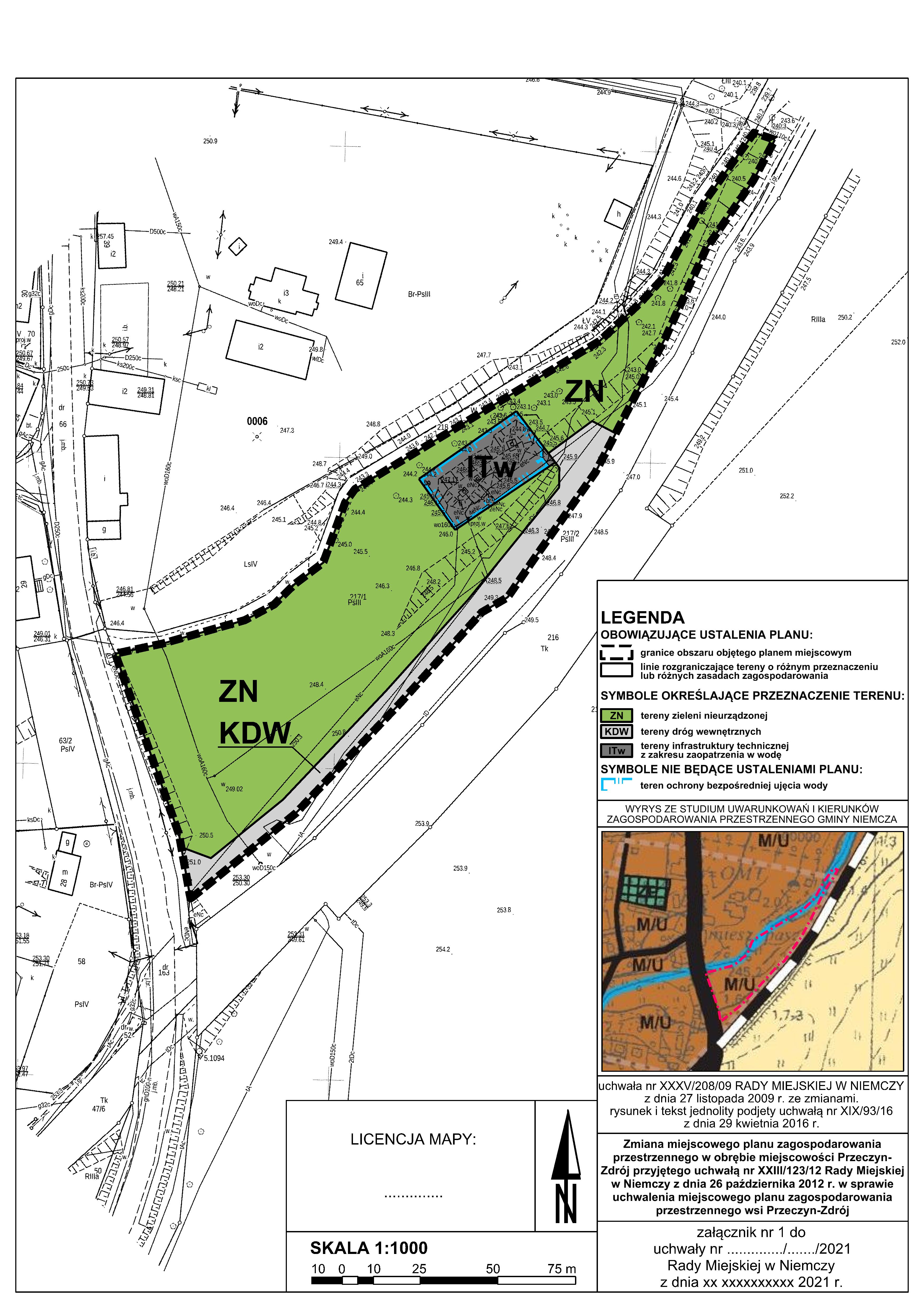
Plik jpg RYSUNEK ZMIANY PLANU.jpg
30‑07‑2021 07:58:46
Trwa wczytywanie metryki. Proszę czekać.
Typ dokumentu:
image/jpeg
Rozmiar:
1,9MB
Liczba pobrań:
Trwa wczytywanie
Plik doc PROGNOZA ODZIAŁYWANIA NA ŚRODOWISKO.doc
30‑07‑2021 07:58:46
Trwa wczytywanie metryki. Proszę czekać.
Typ dokumentu:
application/msword
Rozmiar:
802KB
Liczba pobrań:
Trwa wczytywanie
Trwa wczytywanie metryki. Proszę czekać.
Typ dokumentu:
application/pdf
Rozmiar:
342KB
Liczba pobrań:
Trwa wczytywanie
Trwa wczytywanie metryki. Proszę czekać.
Typ dokumentu:
application/msword
Rozmiar:
16KB
Liczba pobrań:
Trwa wczytywanie

Przypomnienie o obowiązku składania oświadczeń o wartości sprzedaży napojów alkoholowych w roku 2020

12‑01‑2021 14:17:19
Liczba pobrań
Trwa wczytywanie metryki. Proszę czekać.
Liczba komunikatów: 303 Numer strony: 1 .. 19  20  21  22  23  .. 31
Informacja wytworzona przez:
Anna Szczepańska , w dniu:  21‑10‑2011 09:58:00
Informacja wprowadzona do BIP przez:
Wojciech Borzestowski , w dniu:  21‑10‑2011 09:58:00
Data ostatniej aktualizacji:
27‑10‑2025 15:29:50
Ilość wyświetleń:
Trwa wczytywanie
Wczytywanie danych...
Lp. Rodzaj zmiany Data aktualizacji Wytworzono przez Wprowadzono przez Akcje
Wczytaj kolejne wersje artykułu
Pokaż archiwalne komunikaty publikowane na tej stronie